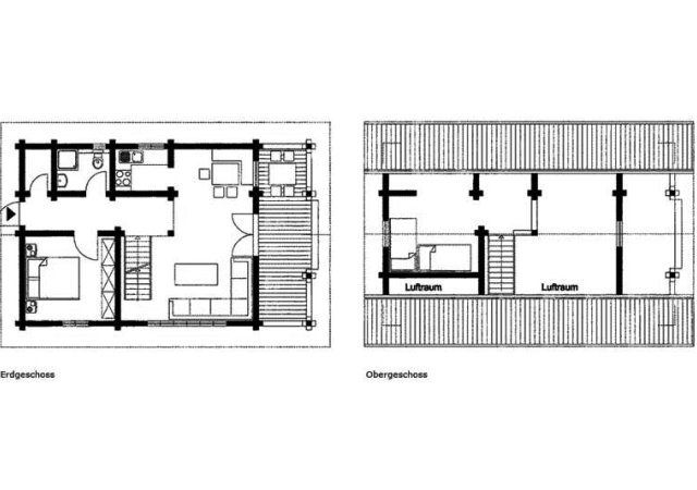
Blockhaus
Preisgruppe III
Blockhaus im nordischen Stil, ca. 71 qm, für max. 5 Personen, Wohnraum, Essecke, Küche, Bad mit Dusche und WC,
EG: 1 Schlafraum mit Doppelbett, OG: 1 Schlafraum mit 3 Schlafmöglichkeiten, Sonnenterrasse, Abstellraum und Parkplatz am Haus
Buchungen von Angeboten bitte ausschließlich
telefonisch unter 04733-1038
